Lease Sample for 103 Canal Landing Blvd Suite 09

Print PDF

North Forest Office Space Standard Plan Lease - 12/04/25

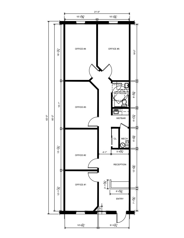
This Lease is made between North Forest Properties #3 LLC ("Landlord"), with a corporate mailing address of 2829 Wehrle Drive, Suite 1, Williamsville, NY 14221, and ______ ("Customer"), with a mailing address of 103 Canal Landing Blvd, Suite 09, Greece, NY 14626. Landlord hereby leases to Customer, and Customer accepts, 103 Canal Landing Blvd, Suite 09 Greece NY, 14626 (“Premises”) in the 95-105 Canal Landing Boulevard (“Office Park”) in the Town of Greece County of Monroe with an approximate size of 1,302 square feet.

UPON THE FOLLOWING TERMS AND CONDITIONS:
  1. Initial Term. The initial Term of this Lease shall be a period of 7 years commencing ______ (“Commencement Date”) and ending ______, unless earlier terminated pursuant to this Lease. In the event Landlord makes the Premises available to Customer prior to the scheduled Commencement Date and Customer elects to accept the Premises as of such earlier date, then the Commencement Date shall be the date on which Customer accepts the keys/access codes to the Premises .

    Rent  Rent for the Initial Term shall be as follows.
    # Pmts Period Sqft ± Rate Annual Monthly
    12 Period 1, 12 Months 1,302 $18.80 $24,477.60 $2,039.80
    12 Period 2, 12 Months 1,302 $19.05 $24,803.16 $2,066.93
    12 Period 3, 12 Months 1,302 $19.30 $25,128.60 $2,094.05
    12 Period 4, 12 Months 1,302 $19.55 $25,454.16 $2,121.18
    12 Period 5, 12 Months 1,302 $19.80 $25,779.60 $2,148.30
    12 Period 6, 12 Months 1,302 $20.05 $26,105.16 $2,175.43
    12 Period 7, 12 Months 1,302 $20.30 $26,430.60 $2,202.55
    All payments of rent shall be due on the first day of each month during the Term. Rental payments are to be made through the Landlord’s online payment portal - automated payment option. In the event the first and/or last months of the Term are less than full calendar months, rent payments for such months shall be prorated on a per diem basis. Customer shall not claim any off set, counterclaim or deduction against any payment of rent. In the event Landlord becomes obligated to collect any sales tax or similar tax on any rent payment or other payment made by Customer to Landlord pursuant to this Lease, Customer shall pay the same together with the rent payment. Landlord shall pay all property taxes.
  2. Interior Build-Out. The interior of the Premises will be constructed or altered to meet the approximate specifications in Exhibit A. The square footage is as determined by Landlord on a basis consistent with the measurement method used by Landlord with other tenants of the Office Park.
  3. Use. Customer may use the Premises solely as business offices in connection with its __________ business. The Premises shall be used for no other purpose. Customer acknowledges that the Premises is part of a professional office park, and professional conduct is expected from all Customers, their employees and guests.
  4. Security Deposit. Customer shall deposit with Landlord on the signing of this Lease the sum of $2,039.80 (its “Security Deposit”) as security for Customer’s payment and performance obligations in this Lease. If Landlord applies any part of the Security Deposit to any Event of Default, Customer, on demand, shall deposit with Landlord the amount so applied, so that Landlord shall have the full Security Deposit on hand at all times during the Term. Customer shall not be allowed to take occupancy of the Premises until the Security Deposit has been deposited with Landlord.
  5. Utilities.  Landlord shall provide and pay for reasonable water to the Premises. Customer shall be responsible for the payment of all other utilities (including gas, electric, telephone, and data connections) consumed on the Premises during the Term. All applications and connections for such utility services shall be arranged by and be in the name of Customer only. Customer’s failure to switch over such utilities to Customer’s account within 15 days of the Commencement Date shall be an Event of Default for the purposes of Article 20 below, in which event, in addition to Landlord’s other remedies therein, Landlord may cut off such utilities and impose an administrative charge to Customer of up to $25.00 per day for the additional work imposed upon Landlord due to Customer’s failure to comply with this requirement.
  6. Use of Chair Mats. Customer is required to use chair mats.
  7. Holdover and Holdover Rate.If Customer fails to vacate and surrender the Premises to Landlord on or before the last day of the Term then in effect, Customer shall be deemed in Holdover and shall be assessed the Holdover Rate. The "Holdover Rate" shall be defined as a daily rent equal to 1/30th of 150% of the monthly rent in effect during the last month of the Term. During such Holdover tenancy, Customer shall continue to comply with all payment and performance obligations of Customer in this Lease.
  8. Park Rules. Customer shall comply with all rules and regulations which may be issued from time to time by Landlord to the Customers of the Office Park. A list of the Rules currently in effect are attached to this Lease and made a part hereof.
  9. Care and Maintenance of Office Park and Premises. Landlord shall maintain the Office Park grounds and parking lots and provide garbage removal facilities (at designated disposal locations). Landlord shall also maintain (i) the roof, exterior walls, exterior windows, exterior doors, structural walls, and foundation of the Premises, and (ii) the furnace and air conditioning unit, sewer and water lines, plumbing fixtures, electrical wiring, and ceiling light fixtures (including light bulbs) which are part of the standard Premises as of the Commencement Date; provided Customer shall reimburse Landlord for repairs due to the negligence or willful misconduct of Customer, or its employees, agents or guests. Customer is responsible for the repair, replacement and maintenance of the lock on the entrance door to their business.
    Except for Landlord’s maintenance obligations, Customer shall maintain the Premises in good condition and repair, including by way of example only, all doors and locks, ceilings, interior windows, walls, appliances, cabinets and carpeting. Landlord is not responsible for service or repair of specially installed HVAC or other trade specific equipment (for example, dental chairs or medical equipment) installed by the Customer or Customer’s vendor.
  10. Alterations. Customer shall not make any structural changes or other alterations, additions, or improvements to the Premises. Customer may install and may remove its trade fixtures, furniture, equipment, and other personal property not requiring any structural alterations to the Premises. All such items shall be removed prior to the end of the Term and Customer shall repair any damage caused by such removal. Any change, alteration, addition or improvement which Landlord approves in writing and made by Customer to the Premises, including all articles/items attached or affixed to the floors, doors, walls, windows, ceilings, or trim of the Premises shall automatically become the property of Landlord at the end of the Term, and shall remain upon and be surrendered with the Premises at the end of the Term, unless Landlord directs Customer to remove the same, in which event Customer shall return the Premises to Landlord in the same condition as when delivered to Customer at the beginning of the Term.
  11. Compliance with Law. Customer shall comply with all federal, state, municipal and other governmental statutes, ordinances, rules and regulations applicable to the use or occupancy of the Premises, including but not limited to those applicable to environmental matters, and the health or safety of persons in or about the Premises. Without limiting the foregoing, Customer shall comply with all laws, rules, statutes, and regulations relating to chemicals, hazardous materials or hazardous wastes, and under no circumstances shall Customer release, discharge or dispose of chemicals, hazardous materials or hazardous wastes anywhere in or on the Premises, or anywhere in or on the Office Park. So-called “heavy duty” and “industrial” strength bleaches are not to be used in or about the Premises.
  12. Subletting. Customer shall not sublet any portion of the Premises without the prior written consent of the Landlord, which shall not be unreasonably withheld. Any such subletting without Landlord’s prior written consent shall be void and constitute an Event of Default. Customer retains all obligations under the terms of the lease.
  13. Entry and Inspection. Landlord shall be entitled to enter upon the Premises with reasonable advance notice (except in the case of emergency, in which no notice shall be required), for the purpose of inspection, showings, maintenance, and/or repairs to the Premises or adjacent premises which require entry upon the Premises.
  14. Possession and Delivery of Premises. If Landlord is unable to deliver possession of the Premises at the Commencement Date, Landlord shall not be liable for any damages caused thereby, nor shall this Lease be void or voidable, but Customer shall not be liable for any rent until possession is delivered; provided, Customer may terminate this Lease if possession of the Premises is not delivered within sixty (60) days of the Commencement Date. The actual date of delivery of the Premises to Customer shall be deemed the new Commencement Date. In the event the new Commencement Date is on or before the 14th day of the month, the last day of the initial term as determined in Article 1 shall remain unchanged. In the event the new Commencement Date is on or after the 15th day of the month, the last day of the initial term as determined in Article 1 shall be extended to the last day of the month immediately following the month in which the original termination date was to occur.
  15. Customer’s Property. Customer shall insure its property, and assumes all risk of loss or damage to the same due to fire, storm, water, wind or any other cause.
  16. Indemnification of Landlord Upon the Commencement Date of this lease, Landlord and Customer each hereby waive all rights of recovery against the other on account of loss or damage to each other’s respective property located in the Premises. Landlord and Customer further agree to have their respective insurance companies also waive their right of subrogation against the other party in connection with any damage covered by such policies, except damages resulting from the willful misconduct or gross negligence of the other party.
  17. Insurance. Customer shall maintain the following insurance during the Term:
    Commercial General Liability Insurance - Maintained on an occurrence basis, insuring against liability for bodily injury, including death, and property damage arising from or related to Customer’s exercise of any right or privilege pursuant to this Lease or the activities of Customer related to the operation of its business in and about the Premises, with combined single limits of not less than one million dollars ($1,000,000) for bodily injury (including death) and property damage from any one occurrence with a two million dollar ($2,000,000) aggregate. Policy should contain hired and non-owned coverage if there is not a separate Auto Policy.
    Property Insurance - Fire and extended coverage (Special Coverage Form) insurance covering all of Customer’s personal property in the Premises.
    Worker's Compensation Insurance and Employers' Liability and Disability Benefits Law insurance - Statutory Limits.
    At least fifteen (15) days prior to the Commencement Date, Customer shall provide Landlord with proof that Landlord has been designated as an additional insured on each such policy and that such policy shall not lapse nor shall any reduction or material change be made in the coverage provisions thereto without at least thirty (30) days advance written notice to Landlord.
    Customer shall not permit any contractor or other vendor to perform any construction, repair or other services (such as, by way of example only, movers, cleaners and technicians) in the Premises without first providing to Landlord proof that such contractor or vendor has general liability, workers compensation and other forms of insurance as Landlord may require and that both Landlord and Customer have been named are additional insureds thereon.
  18. Eminent Domain. If the Premises or any part thereof or any estate therein, or any other part of the Office Park of which the Premises is a part, shall be taken by eminent domain, at Landlord’s option upon notice to Customer, the Term shall terminate on the date when title vests pursuant to such taking, and Customer shall be responsible to pay rent only through the termination date. Customer shall not be entitled to any part of the award for such taking or any payment in lieu thereof, but Customer may file a claim, against the government agency, for any taking of fixtures and improvements owned by Customer, and for moving expenses.
  19. Destruction of Premises. In the event of fire or other damage to the Demised Premises, which Landlord can practically repair within sixty (60) days, this Lease shall remain in effect and Landlord shall repair the same; provided Customer shall be entitled to a reasonable reduction of rent while such repairs are being made, based upon the extent to which such damage and such repairs materially interfere with Customer’s use of the Premises. In the event of fire or other damage to the Demised Premises, which Landlord cannot practically repair within sixty (60) days, each of Landlord and Customer shall have the right to terminate this Lease on notice to the other within 30 days of the date of such fire or other damage; provided if Landlord elects to repair such damages, and Customer does not exercise its right to terminate, then Customer shall be entitled to a reasonable reduction of rent while such repairs are being made, based upon the extent to which such damage and such repairs materially interfere with Customer’s use of the Premises. In addition, in the event one-third or more of the building in which the Premises are located are substantially damaged or destroyed, Landlord may elect to terminate this Lease, whether the Premises be damaged or not, in which event Customer shall be responsible for rent up to the effective date of such termination. Notwithstanding the foregoing, in the event of any such fire or other damage, in lieu of Landlord or Customer exercising any right of termination, Landlord reserves the right to relocate Customer, at Landlord’s expense, to a comparable office suite in the Office Park for the remainder of the Term, in which event this Lease shall be deemed to refer to such replacement suite instead of the original suite designated herein.
  20. Events of Default; Remedies. An “Event of Default” shall be deemed to have occurred in the event (i) any payment of rent or any other sum becoming due to Landlord is not paid on its due date, (ii) Customer fails to perform any other obligation of Customer pursuant to this Lease which is not cured within ten (10) days of Landlord’s notice to Customer, or (iii) if at any time proceedings in bankruptcy, or pursuant to any other act for the relief of debtors, shall be instituted by or against the Customer, or if a receiver or trustee shall be appointed of the Customer’s property, or if this Lease shall by operation of law, devolve upon or pass to any person or persons other than Customer. A late payment charge of 2% per month (of the amount owed) will be payable on any payment which is not paid within ten (10) days of its due date. Rent payments paid to Landlord shall first be applied to any unpaid charges on the account (for example, late penalties, NSF charges, and administrative fees) and Customer shall immediately pay any deficiency. Upon the occurrence of an Event of Default, to the extent permitted by applicable law, and without any liability to Customer, Landlord may (i) terminate this Lease on notice to Customer, (ii) take control of and repossess the Premises, (iii) remove Customer’s property from the Premises and dispose of the same in any manner, (iv) accelerate and declare immediately due all rent for the balance of the Term and/or change the locks to the Premises. The foregoing remedies and rights of Landlord are cumulative and in addition to any other rights and remedies to which Landlord may be entitled by applicable law. Upon Landlord’s election to terminate this Lease, Customer shall immediately quit and surrender the Premises to Landlord, but Customer shall remain liable for all of Customer’s payment and performance obligations contained in this Lease. In the Event of Default, in addition to any other damages to which Landlord is entitled, Customer shall be liable for Landlord's reasonable attorneys' fees and court costs.
  21. Waiver. No failure by Landlord to enforce any provision hereof, or to declare an Event of Default, or to exercise any right or remedy herein, shall be deemed a waiver of such provision, any other Event of Default or of any such right or remedy. No failure of Landlord to enforce any term hereof shall be deemed to be a waiver.
  22. Notices. All notices shall be in writing and (i) personally delivered with proof of delivery, including by commercial courier, (ii) mailed, postage prepaid, to the receiving party, in which case the notice shall be deemed given three days after deposit in the U.S. mail, or (iii) sent by Electronic mail (email). Notices shall be sent either by email to team@northforest.com or to the physical address of Customer or Landlord set forth in the introduction to this Lease. Customer or Landlord may update their address via a written Notice to the other party.
  23. Heirs, Assigns, Successors. This Lease shall be binding upon and inure to the benefit of each of Landlord and Customer, and their respective heirs, assigns and successors.
  24. Subordination. This Lease shall be subordinate to all existing and future mortgages recorded against the property of which the Premises is a part. If any such mortgage is foreclosed upon, (i) this Lease shall continue in force, (ii) Customer’s quiet possession shall not be disturbed if Customer has not committed an Event of Default, and (iii) Customer will attorn to and recognize the mortgagee or purchaser at foreclosure sale as Customer’s landlord for the balance of the Term. This paragraph shall be self-operating, however, Customer shall promptly execute and deliver to Landlord any reasonable documents submitted to Customer to confirm the foregoing provisions of this Section 24.
  25. Landlord May Perform. If Customer shall default in the performance of any obligation herein contained, Landlord may (but shall not be required to) perform the same for the account of Customer, and Customer shall reimburse immediately Landlord for the cost thereof upon being billed for the same.
  26. Mechanics Liens. Customer shall not default in the payment to any contractor or otherwise take any action or fail to take any action which results in a mechanics or other lien being filed against the Premises or the property of which the Premises is a part. If any such lien is filed and if the Customer shall fail to cause such lien to be discharged within fifteen days after filing thereof, Landlord may pay the amount of such lien or discharge the same by deposit or by bonding proceedings, for the account of Customer, and Customer shall reimburse immediately Landlord for the cost thereof upon being billed for the same.
  27. Entire Agreement. The Lease, including any riders, exhibits, or schedules hereto, contains the entire agreement of Landlord and Customer with respect to the subject matter hereof and incorporates all prior dealings and negotiations between them related hereto. This Lease may be amended or modified only by a written agreement signed by both Landlord and Customer. This Lease may be executed in one or more counterparts. Delivery of a photocopy, facsimile or electronic copy of this lease shall have the same effect as delivery of an original executed copy.
  28. Surrender. Customer shall surrender the Premises to Landlord at the end of the Term, broom clean and in the same condition as the Commencement Date, normal wear and tear only excepted. “Normal wear and tear” shall be as determined by Landlord using a standard of commercial reasonableness. All of Customer’s property not removed upon the expiration or termination of this lease will, at the option of Landlord, be deemed abandoned by Customer and the Landlord may keep, sell, or otherwise dispose of such property in the Landlord's discretion, and retain the proceeds thereof.
  29. Limitation of Landlord’s Liability. Landlord shall not be liable for lost profits, loss of business, interest, increased expense of operation or any other consequential, incidental, indirect or special damages, whether caused by breach of contract, breach of warranty, negligence or otherwise.
  30. Waiver of Jury Trial. Landlord and Customer each hereby waive trial by jury in any action, proceeding or counterclaim brought by either of the parties hereto against the other on any matters whatsoever arising out of or in any way connected with this Lease.
  31. Estoppel Certificates. Customer, shall, within five (5) days of Landlord’s request, execute, acknowledge and deliver to Landlord a statement in writing certifying that (i) this Lease is unmodified and in full force and effect; (ii) the date to which rent is payable hereunder is paid; (iii) that to the knowledge of Customer no default by Landlord or Customer exists; and (iv) such other matters as may be reasonably requested by the Landlord.
  32. Signs. Landlord shall provide initial signage identifying customers’ occupancy of the Premises, consistent with signage provided to other Customers of the Office Park. Customer shall not erect or affix any other signage near or to the Premises (inside or out) that is visible outside the Premises.
CUSTOMER: ______

Date
LANDLORD: North Forest Properties #3 LLC
  TAX ID: 56-2425213
X   [sig|req|signer0                                  ]       [date|req|signer0                                  ]
Chris Kozlowski, Director of Technology and Customer Systems
Date

OFFICE PARK RULES

The following rules are applicable to all customers at 95-105 Canal Landing Boulevard

No Smoking / Vaping. NO SMOKING or VAPING open flames shall be permitted within the Premises. Customer’s employees, agents or guests may smoke only in outdoor areas within the Office Park and at a minimum of 20 feet from the building as designated by Landlord for such purpose, if any.
Parking Policy. Spaces in the row of parking immediately in front of the Building are for visiting clients/visitors to the Office Park. Customer and their employee(s) are to park in secondary or other available rows of parking.
Safety. No candles or open flames are allowed in any part of the Premises for any reason.
Pets. Customer is allowed to have fish in the Premises. No other animals are allowed in the Premises, with the exception of service animals accompanying their owners.
Snow Plowing. Landlord shall snow plow the parking area. Landlord will normally have office entranceways cleared of snow prior to 8 a.m. daily, but if snow or ice should accumulate after that, Customer will be responsible for shoveling/salting its entranceway during normal business hours.
Awnings. No awning, flagpole or other projections shall be attached to the exterior walls of the Premises.
Garbage. All garbage and refuse shall be kept in appropriate containers in the Premises and shall be deposited inside of such dumpsters or other facilities specified by Landlord.
Roof. No attempt shall be made to access or climb upon any roof. No aerial, antennae, or satellite dishes shall be erected on the roof or on the exterior walls of the Premises.
Excessive Noise. The premises is located in a professional setting and professional conduct is expected with regard to noise so as not to disturb the peace of others.
Interior Temperature. Customer shall keep the Premises at a temperature sufficiently high to prevent freezing of water in pipes and fixtures.
Pests. Customer shall properly store food and other items which attract pests and rodents so as to minimize the risk of attracting the same into the Premises.
Odors. Customer shall not make or permit any odor that Landlord deems objectionable to emanate from the Premises.
Sleeping. No person shall use the Premises as sleeping quarters, sleeping apartments, or lodging rooms.
Permits. Customer shall obtain all permits or licenses necessary to conduct its business.
Sports. Sporting activities (including by way of example only football, baseball, lacrosse, frisbees, and basketball) shall be permitted only in an area within the Office Park designated by Landlord, if any.
CUSTOMER: ______

Date
PERSONAL GUARANTY OF OCCUPIED LEASE RENTS

Re: Office Suite Lease Between, North Forest Properties #3 LLC as Landlord, and ______, as Customer, dated 12/04/2025 (the “Lease”).
The undersigned (the "Guarantor"), in consideration of, and to induce the Landlord to enter into the above referenced Lease, hereby unconditionally and absolutely guarantees to Landlord, its successors, assigns and transferees, the timely and full payment of any rent owed while the leased space was occupied and/or in possession by Customer and all costs and expenses, including but not limited to interest, attorneys' fees incurred by Landlord in connection with the collection or attempted collection of same. Guarantor hereby consents to any modification of the Lease as may be agreed upon between Landlord and Customer, Guarantor to remain bound under this Guaranty notwithstanding any such modification. Guarantor hereby waives any right to require that any action or other proceeding be brought or instituted against Customer or any other person or party or to require that resort be had to any security as a condition precedent to the enforcement of this Guaranty.
No delay or omission by Landlord in exercising any right or remedy hereunder shall operate as a waiver thereof or of any other right or remedy, and no single or partial exercise thereof shall preclude any other or further exercise thereof or the exercise of any other right or remedy. This is a guarantee of payment and not of collection.
No modification or amendment of this Guaranty shall be effective unless in writing and signed by both Guarantor and Landlord. The terms of this Guaranty shall be governed by and construed in accordance with the laws of the State of New York.
If more than one person is signing below, each person is a Guarantor on a joint and several basis for the amount of unpaid rents and expenses incurred while the leased space was occupied. It is agreed by Landlord that this Personal Guaranty will expire once the prior occupied amount owed and any additional back rent owed is paid in full.


IN WITNESS WHEREOF, the undersigned has caused this Guaranty to be executed on .
Guarantor:
Signature 
[PLACEHOLDER                                              ]
Printed Name 
[PLACEHOLDER                                              ]
Date 
[PLACEHOLDER                                              ]
Home Address 
[PLACEHOLDER                                              ]
 
[PLACEHOLDER                                              ]

EXHIBIT A

Copyright © 2025 North Forest Development, LLC. These Plans Are The Exclusive Design Of North Forest Development, LLC.
All Rights Reserved. Any Use Or Reproduction Of These Plans In Whole Or In Part Is Strictly Prohibited.
1130 Crosspointe Lane , Suite 05 Webster, NY 14580 | Phone (585) 248-0990 | northforest.com